Skip to main content
  • ConceptSystem 77 Portes, ConceptPatio 68 Coulissants et HiFinity Coulissants - Las Palmeras situé àEspagne
  • ConceptSystem 77 Portes, ConceptPatio 68 Coulissants et HiFinity Coulissants - Las Palmeras situé àEspagne
  • ConceptSystem 77 Portes, ConceptPatio 68 Coulissants et HiFinity Coulissants - Las Palmeras situé àEspagne
  • ConceptSystem 77 Portes, ConceptPatio 68 Coulissants et HiFinity Coulissants - Las Palmeras situé àEspagne
  • ConceptSystem 77 Portes, ConceptPatio 68 Coulissants et HiFinity Coulissants - Las Palmeras situé àEspagne

Las Palmeras

Espagne - 2014

Conçu par l’architecte Valentín de Madariaga pour un client originaire d’Europe du Nord, le projet Casa Las Palmeras allie éléments traditionnels et rendu moderne, épuré. La façade côté rue est aussi massive et mystérieuse que celle des maisons maures en Al-Andalus (territoire historique du sud de l’Espagne à l’époque où il appartenait à l’empire islamique), tandis que la construction et la géométrie dégagent une sérénité et une ouverture toutes contemporaines proches de l’ambiance d’un monastère du XXIe siècle.

« Il y a quelque temps de cela, un client anglais m’a fait découvrir le feng shui, un art chinois que j’essaie d’appliquer dans le contexte espagnol », explique Valentín de Madariaga. « Discipline ancestrale qui s’intéresse à la relation entre l’environnement et la lumière, le feng shui vise également à la création de paix et d’harmonie ». La parcelle de terrain était l’élément clé du projet Casa Las Palmeras. De Madariaga explique : « Le terrain a dicté la position des six colonnes, leurs proportions et la place des éléments du jardin ». « Les palmiers qui longent la piscine rendent la baignade encore plus agréable et le bambou qui entoure les bords du jardin créé une atmosphère intime ».

 

À l’instar de l’architecte, le résident de la Casa Las Palmeras est un amateur inconditionnel d’art contemporain. La « colonne vertébrale » de la résidence, qui tisse le lien entre la structure et ses différentes fonctions, est un long corridor que le propriétaire utilise pour exposer sa collection d’art privée. La lumière indirecte du soleil illumine les tableaux exposés dans ce corridor, qui part de la salle de sport, longe les espaces de vie et de réception pour rejoindre les espaces de service, la chambre parentale et celles des enfants. En tout, la résidence s’étend sur 1 200 mètres carrés. Les différentes pieces sont toutes orientées vers la terrasse couverte qui s’ouvre sur la pelouse.

 

ConceptSystem 77 Portes, ConceptPatio 68 Coulissants et HiFinity Coulissants - Las Palmeras situé àEspagne

Les portes coulissantes Hi-Finity en verre créent une transition naturelle entre les espaces intérieur et extérieur

Transition souple

Les gens passent beaucoup de temps à l’extérieur dans cette région. Les espaces extérieurs qui flanquent le jardin et les galleries ombragées peuvent même se révéler plus importantes que les espaces intérieurs. Les 18 portes coulissantes Hi-Finity en verre créent une séparation quasiment invisible entre les espaces intérieur et extérieur tout en dessinant une transition naturelle. Conçues spécialement pour ce projet en collaboration avec Grupo Moncada, les portes coulissantes de la salle de sport sont particulièrement imposantes. De Madariaga se rappelle : « Leur mise en place fut un énorme défi pendant la construction. Heureusement, nous avons pu remplacer rapidement un des quatre éléments en verre qui a été brisé par une forte bourrasque de vent. Reynaers a placé un système motorisé pour ouvrir et fermer ces éléments car ils sont extrêmement lourds ! ».

« Ces portes spécialement conçues mesurent 5,9 mètres de haut et pèsent 285 kilogrammes. Nous avons fabriqué et installé le système de remplacement en moins d’une semaine et demi », lance le fabricant José Miguel Moncada de Grupo Moncada. « Le rythme du chantier nous a obligé à finir dans les délais. L’ensemble du projet a été achevé en neuf mois ».

ConceptSystem 77 Portes, ConceptPatio 68 Coulissants et HiFinity Coulissants - Las Palmeras situé àEspagne

Toute la façade est équipée d’éléments coulissants Hi-Finity qui permettent de profiter pleinement du jardin

Les éléments coulissants Hi Finity installés par Grupo Moncada jouent un rôle fondamental dans la relation avec l’environnement. C’est pourquoi les rails ont été immergés dans le sol tandis que les profiles supérieurs et latéraux ont été intégrés dans les murs. Seule la section de jonction des profiles minimalistes Hi-Finity demeure visible. De l’extérieur, le verre agit comme un miroir qui reflète l’environnement. Encadrée par les profilés blancs de la résidence, les lignes floues des terrasses et de la végétation évoquent une peinture moderne: la dernière venue dans la collection du propriétaire.

Large Hi-Finity sliding doors provide no more than a razorthin separation between interior and exterior

José Miguel Moncada (Grupo Moncada)
ConceptSystem 77 Portes, ConceptPatio 68 Coulissants et HiFinity Coulissants - Las Palmeras situé àEspagne
José Miguel Moncada (Grupo Moncada)
Fabricators
José Miguel Moncada (Grupo Moncada)

José Miguel Moncada was born in 1970 in San Roque and leads Grupo Moncada, the family-run business established by his father nearly sixty years ago. José Miguel Moncada is an electrical engineerwho also holds a master’s degree in business administration. He expanded the business from its initial focus on wooden doors and window frames into a versatile supplier for the construction sector. The experienced team is continuously introducing new technologies in their factory, which is equipped with state-of the-art machinery. Today they produce furniture along with complex curtain walls and aluminium window frames, the latter exclusively in partnership with Reynaers. “Experience and incorporation of innovative products are key to the success of our projects”, he says.

ConceptSystem 77 Portes, ConceptPatio 68 Coulissants et HiFinity Coulissants - Las Palmeras situé àEspagne
Valentín de Madariaga
Architects
Valentín de Madariaga

Valentín de Madariaga

 

Valentín de Madariaga est né en 1960 à Séville. Après des études d’architecture à Escuela Técnica Superior de Madrid (École Technique d’Architecture de Madrid), il part en 1987, aux côtés d’Ernesto Merello, en quête d’une voie pour combiner architecture traditionnelle et moderne. De Madariaga s’est rapidement spécialisé dans la création de maisons individuelles de standing marquées par la « typologie hacienda » spécifique de sa région natale, l’Andalousie. Il a conçu plus de 150 résidences privées mais aussi des clubs de golf, des restaurants et des piscines. Il a également restauré des sites historiques, comme des églises. « L’environnement est un facteur décisif dans l’évolution de l’architecture et cela se reflète dans les proportions, les matériaux, la température, la lumière, le son et le ressenti », dit de Madariaga.

ConceptSystem 77 Portes, ConceptPatio 68 Coulissants et HiFinity Coulissants - Las Palmeras situé àEspagne

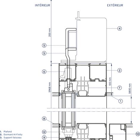
Hi-Finity solution sur mesure, coupe horizontale

Solution de projet

Système: Hi-Finity solution sur mesure

Description du projet:

  • Moteur externe monté sur le dormant haut (réserve 20 cm)
  • Connexion spéciale du moteur pour suivre les parties mobiles des ouvrants
  • Montant central spécifique à double renfort
  • Recherche et développement complémentaires dus aux poids et dimensions

Eléments:

  • Quatre vantaux coulissants Hi-Finity à ouverture centrale
  • Dimensions: H= 5.9 m x L= 1.25 m par vantail
  • Poids par vantail: 285 kg

Vitrage:

  • Double vitrage feuilleté : 44.1/20/44.1
ConceptSystem 77 Portes, ConceptPatio 68 Coulissants et HiFinity Coulissants - Las Palmeras situé àEspagne

Hi-Finity solution sur mesure, coupe verticale

Les acteurs du projet

Fabricator

  • Moncada Aluminium

Photographe

  • Claudio Curia

Autre partie prenante

  • Sander Laudy (Authors)